3056 N Oakley Ave apt 4n
Chicago, IL 60618
distanceFromTop ? true : false">
Details
Images
Floor Plans
Toggle Navigation
Images
Floor Plans
Map
Images
Show more
Slideshow
Photo Grid
Hide
Previous
Next
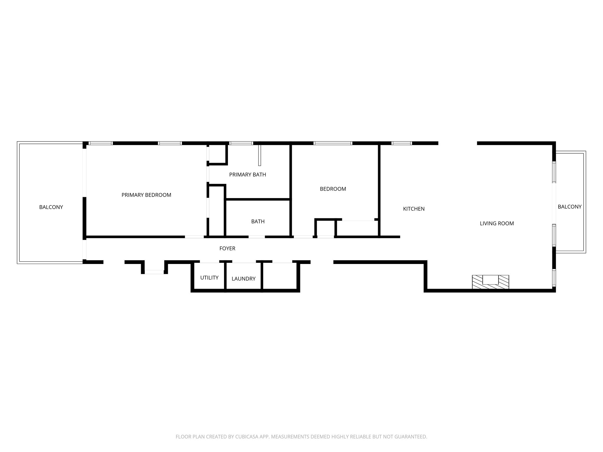
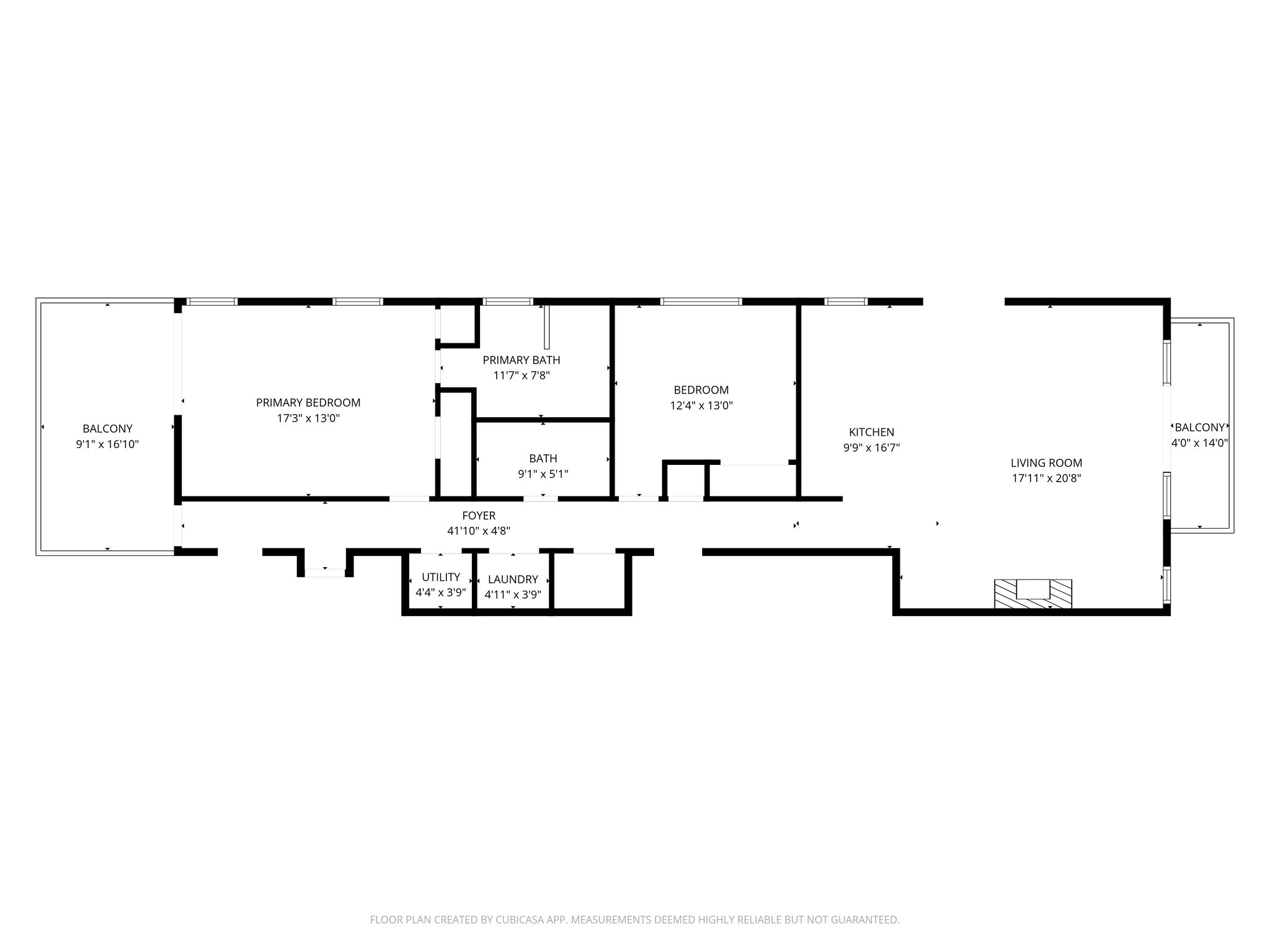
Floor Plans
Slideshow
Photo Grid
Hide
Previous
Next